Welcome to The Iconic Home, a unique digital experience celebrating the unparalleled talent of the Black design community. Presented by Architectural Digest and the Black Interior Designers Network, the first-of-its-kind designer showhouse gives 16 Black-led firms from across the country carte blanche to imagine the perfect room. Taken together, their interiors form an inspiring virtual dwelling that highlights the breadth of Black design creativity.
EXPLORE THE ICONIC HOME
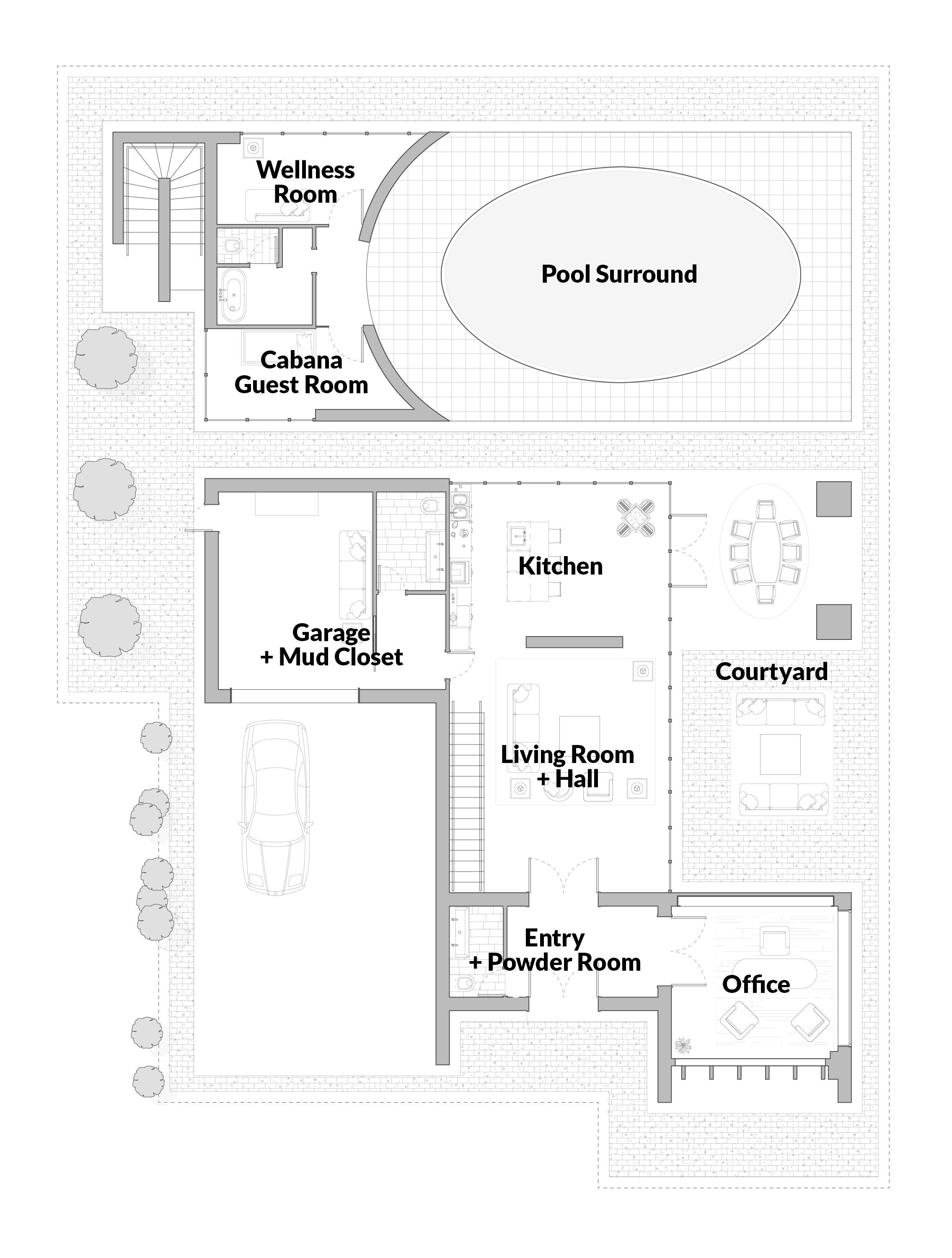
SELECT THE FLOOR AND ROOM FOR THE VIRTUAL reality TOUR
The Architect
STUDIO 397 Architecture
"We wanted to push the boundaries of modern design, but still pay attention to the vernacular of the environment of the Northeast region." - Samantha Josaphat
Samantha Josaphat and Luis Medina
STUDIO 397 Architecture | Brooklyn, NY
Samantha Josaphat and Luis Medina
STUDIO 397 Architecture | Brooklyn, NY
STUDIO 397 Architecture is a Brooklyn-based practice that specializes in residential and commercial projects. Samantha Josaphat, who is the 397th African-American female architect to receive licensure in the U.S., founded the firm three years ago. She is a design studio adjunct professor at the Bernard and Anne Spitzer School of Architecture and president of the New York Chapter of the National Organization of Minority Architects. Luis Medina joined the firm this year, bringing over a decade of finance and construction management experience.
The Designers
SELECT A DESIGNER TO VISIT THEIR ROOM
SCHEDULE OF EVENTS
JOIN US ON INSTAGRAM LIVE VIA @archdigest
18. NOVEMBER | 3:00 PM ET
David Kaufman x Keia McSwain
DECORATING WITH TECH
Explore the importance of tech in our modern homes, and learn how to blend devices and design in a seamless way.
Brought to You by LG SIGNATURE
18. NOVEMBER | 6:00 PM ET
Nora Taylor x Eneia White
WINDOW SHOPPING
Discover what's new and exciting when it comes to your home's most important-but underlooked-features. Get expert advice for approaching windows in different rooms.
Brought to You by The Shade Store
19. NOVEMBER | 3:00 PM ET
Katy Olson x Brigette Romanek
KITCHEN TRENDS
Dig into the most anticipated kitchen design trends of 2021, including an exclusive conversation around AD PRO's new Trend Report.
Brought to You by Gaggenau
19. NOVEMBER | 6:00 PM ET
Hosted by David Kaufman, Samantha Josaphat and Luis Medina, Christopher Charles Evans, Tiffany Cobb
SEASONAL SPACES
Learn how to spruce up your home for the holidays and incorporate tasteful seasonal decor.
20. NOVEMBER | 3:00 PM ET
David Kaufman x Jason Bolden and Adair Curtis
OUTDOOR LIVING
Expand your home's footprint with expert tips on designing the ultimate outdoor space.
Brought to You by Caesarstone
20. NOVEMBER | 6:00 PM ET
Hosted by Katy Olson, Elaine Griffin, Brenda Danso, Anthony Dunning
OVERLOOKED SPACES
Discover how to give special design treatment to spaces that are often written off as afterthoughts (Brenda and Elaine); and how to design a wellness space (Anthony)
23. NOVEMBER | 3:00 PM ET
Katy Olson x Amhad Freeman
DESIGNING FOR WORK
The home office has become more important than ever. Get expert tips for creating a work space you'll want to spend time in.
Brought to You by CB2
23. NOVEMBER | 6:00 PM ET
Hosted by Nora Taylor, Tavia Forbes and Monet Masters, Leah Alexander, Ariene C. Bethea
HOSTING WITH STYLE
Learn how to create an inviting space for gatherings of all types.
24. NOVEMBER | 3:00 PM ET
Nora Taylor x Carmeon Hamilton
PRIORITIZING RELAXATION
Your bedroom should be a sanctuary. Here's how to maximize your space for peace and clam.
Brought to You by Purple Innovation, Inc.
24. NOVEMBER | 6:00 PM ET
Katy Olson x Michel Smith Boyd
ROOMS FOR LIVING
Maximize the rooms in your home so that they're as multifunctional, comfortable, and liveable as possible.
Brought to You by Crate and Barrel
Black Interior
Designers Network
Founded in 2010, the Black Interior Designers Network is a 501(c)(3) nonprofit organization dedicated to promoting diversity and inclusion within the interior design industry by highlighting designers of color and supporting Black designers with business development opportunities. The Black Interior Designers Network works to create a rich network of resources for members, colleagues, suppliers, manufacturers, and media entities that showcase the breadth of Black interior designers creativity, influence and professional contributions, ultimately helping to close the opportunity and income gap of the minority community.
Proceeds raised through The Iconic Home will go to the Black Interior Designers Network, a 501(c)(3) nonprofit organization, and will be used to support BIDN initiatives which strive toward building an equitable interior design community that recognizes and values its Black members. BIDN initiatives including the annual BIDN conference, diversity and inclusivity training, AA Top 20 program, and the ongoing business resources and referrals program that matches members with potential clients.
@studio397






